Skip To Content

6067 Lundy Road

Theodore, AL 36582
  • $337,400
  • STATUS: Closed
  • ON SITE: 259 Days
  • MLS #: 7630899
Sold - 02/27/2026
$337,400
SOLD - 02/27/2026
  • 4
    BEDS
  • 0.49
    ACRES
  • 2
    BATHS
  • 0
    1/2 BATHS
  • 2,054
    SQFT
  • $0
    $/SQFT
Neighborhood:
Type:
Single-Family Home
Built:
2025
County:

School Information

Elementary School:
Middle School:
High School:

Description

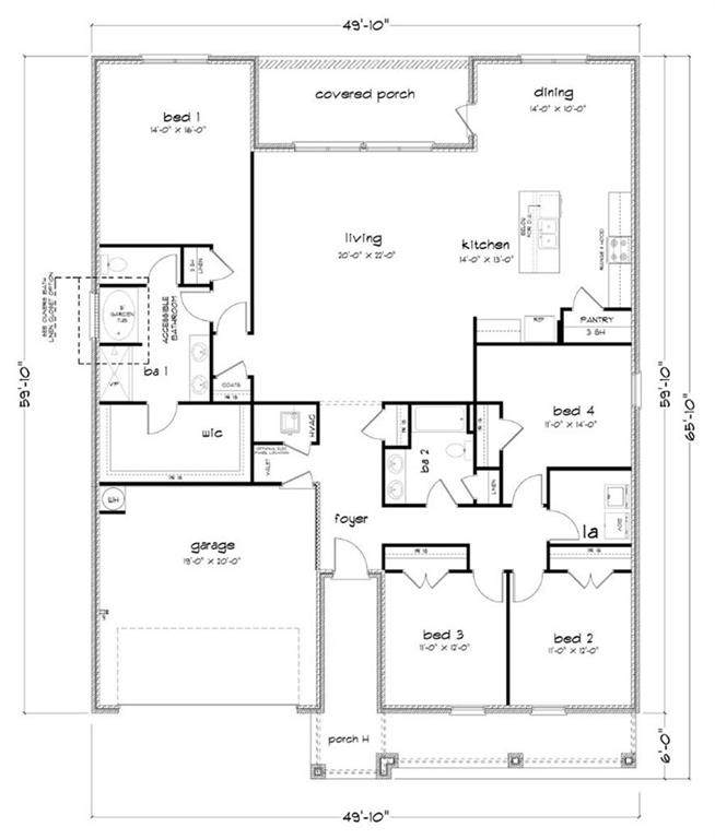
NEW CONSTRUCTION*** Introducing 6067 Lundy Road. Step into the Denton at The Crossings, one of our best-selling floorplans. This home features four bedrooms, two bathrooms in over 2,200 square feet of comfortable living space with a two-car garage. As you enter the home through the front foyer, you walk past garage access, a short hallway with three bedrooms. These bedrooms have access to a full bathroom with double sink vanity and shower/tub combination. The laundry room is also positioned down this hallway. The well-appointed kitchen overlooks the living area, dining room, and covered porch. Entertaining is a breeze, as this popular single-family home features a spacious granite kitchen island, dining area and a spacious pantry for extra storage. The primary bedroom, located at the back corner of the home for privacy, has an ensuite bathroom with a double vanity, separate shower and garden tub with a spacious walk-in closet providing ample space for storage. Like all homes in The Crossings, the Denton includes a Home is Connected smart home technology package which allows you to control your home with your smart device while near or away. This home is also being built to Gold FORTIFIED HomeTM certification so see your Sales Representative for details. Pictures may be of a similar home and not necessarily of the subject property. Pictures are representational only.

Monthly Payment Calculator



© 2026 Gulf Coast Multiple Listing Service, Inc. All rights reserved. All information provided is deemed reliable but is not guaranteed or warranted and should be independently verified. The data relating to real estate for sale on this web site comes in part from the IDX/RETS Program of the Gulf Coast Multiple Listing Service, Inc. IDX/RETS real estate listings displayed which are held by other brokerage firms contain the name of the listing firm. The information being provided is for consumers' personal, non-commercial use and will not be used for any purpose other than to identify prospective properties consumers may be interested in purchasing. Data last updated: 2026-05-15T09:44:56.88.

Mobile Bay Realty
www.mobilebayrealty.com/homes/167399960
Print Image

6067 Lundy Road Theodore, AL 36582

  • Price: $337,400
  • Status: Closed
  • On Site: 259 Days
  • Updated: 49 min ago
  • MLS #: 7630899
4
Beds
2
Baths
0
½ Baths
0.49
Acres
2,054
SQFT
$0
$/SQFT
2025
Built
Neighborhood:
The Crossings
County:
Mobile - Al
Elementary School:
Pearl Haskew
Middle School:
Katherine H Hankins
High School:
Theodore
Property Description
NEW CONSTRUCTION*** Introducing 6067 Lundy Road. Step into the Denton at The Crossings, one of our best-selling floorplans. This home features four bedrooms, two bathrooms in over 2,200 square feet of comfortable living space with a two-car garage. As you enter the home through the front foyer, you walk past garage access, a short hallway with three bedrooms. These bedrooms have access to a full bathroom with double sink vanity and shower/tub combination. The laundry room is also positioned down this hallway. The well-appointed kitchen overlooks the living area, dining room, and covered porch. Entertaining is a breeze, as this popular single-family home features a spacious granite kitchen island, dining area and a spacious pantry for extra storage. The primary bedroom, located at the back corner of the home for privacy, has an ensuite bathroom with a double vanity, separate shower and garden tub with a spacious walk-in closet providing ample space for storage. Like all homes in The Crossings, the Denton includes a Home is Connected smart home technology package which allows you to control your home with your smart device while near or away. This home is also being built to Gold FORTIFIED HomeTM certification so see your Sales Representative for details. Pictures may be of a similar home and not necessarily of the subject property. Pictures are representational only.
Exterior Features

Architectural Style Traditional Construction Materials Brick Veneer Dock None Exterior Features None Fencing None Foundation Details Slab Garage YN Yes Levels One Lot Features Back YardClearedRectangular Lot Other Structures None Parking Features GarageGarage Door OpenerGarage Faces Side Patio And Porch Features Covered Pool Features None Road Frontage Type None Road Surface Type None Roof Shingle View Other View YN Yes Waterfront Features None Waterfront YN No

Interior Features

Appliances DishwasherDisposalElectric RangeMicrowave Basement None Bedroom Features None Cooling Central Air Cooling YN Yes Dining Room Features Great RoomOpen Floorplan Fireplace Features None Fireplace YN No Heating Central Heating YN Yes Interior Features High Ceilings 10 ft MainTray Ceiling(s) Kitchen Features Cabinets OtherEat-in KitchenKitchen IslandPantry Walk-In Master Bathroom Features Double VanitySeparate Tub/Shower Rooms Total 0 Spa Features None Spa YN No Window Features Double Pane Windows

Property Features

Accessibility Features None Assessment Due Contemplated YN No Association Rent Restrictions YN No Community Features Sidewalks Green Energy Efficient None Land Lease YN No Mls Property Type Residential Detached New Construction YN Yes Occupant Type Vacant Property Sub Type Single Family Residence Sewer Public Sewer Special Circumstances None Tax Annual Amount 0 Utilities Cable AvailableElectricity AvailableSewer AvailableWater Available Water Source Public

Listing provided by Shenita Miller of DHI Realty of Alabama LLC: 251-303-8980.


© 2026 Gulf Coast Multiple Listing Service, Inc. All rights reserved. All information provided is deemed reliable but is not guaranteed or warranted and should be independently verified. The data relating to real estate for sale on this web site comes in part from the IDX/RETS Program of the Gulf Coast Multiple Listing Service, Inc. IDX/RETS real estate listings displayed which are held by other brokerage firms contain the name of the listing firm. The information being provided is for consumers' personal, non-commercial use and will not be used for any purpose other than to identify prospective properties consumers may be interested in purchasing. Data last updated: 2026-05-15T09:44:56.88.

Mobile Bay Realty
 
https://bt-photos.global.ssl.fastly.net/mobile/orig_boomver_1_7630899-2.jpg https://bt-photos.global.ssl.fastly.net/mobile/orig_boomver_1_7630899-2.jpg https://bt-photos.global.ssl.fastly.net/mobile/orig_boomver_1_7630899-2.jpg
Logo
Mobile Bay Realty
10 N. Section Street
Fairhope AL, 36532